Powered By Kitlog Pro v2.0
My Airplane Projects
C120
Fuselage
4-30-2020
< Previous Log Entry
Next Log Entry >
Date:
4-30-2020
Number of Hours:
0.00
Manual Reference:
Brief Description:
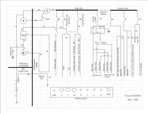
Updated wiring diagram
Updated wiring diagram on trial version of eDraw, reviewed with Sam by Zoom. Reviewed and updated lists with Sam.
< Previous Log Entry
Next Log Entry >
SITE NAVIGATION
Contact Builder
Fleet Model 16 Home
C120 Home
Category
# Logs
# Hours
All
585
1412
Avionics
1
46
Elevators
16
58
Engine
74
102
Engine
6
132
Exterior Finish
11
140
Firewall Forward
6
132
Flight Tests
5
46
Fuel System
6
Fuselage
227
311
Horizontal Stab.
17
65
Interior
8
Lighting
2
44
Miscellaneous
70
4
Modifications
1
56
None
2
Preparation
4
44
Rudder
14
52
Skiis
4
Wheels & Brakes
6
Wings
105
180
RV-12 Home
Copyright © 2001-2020 Matronics. All Rights Reserved.